
いつでも家族が集うマイホーム。
子供が帰りたくなるおうち。
綺麗なクリスマスツリーを飾り、
イルミネーションと共にキラキラ輝く瞳の娘。
そんな愛おしい瞳とあなたの笑顔のために
いつもあなたのそばに
株式会社ホームケア
600万円(税別)
700万円(税別)
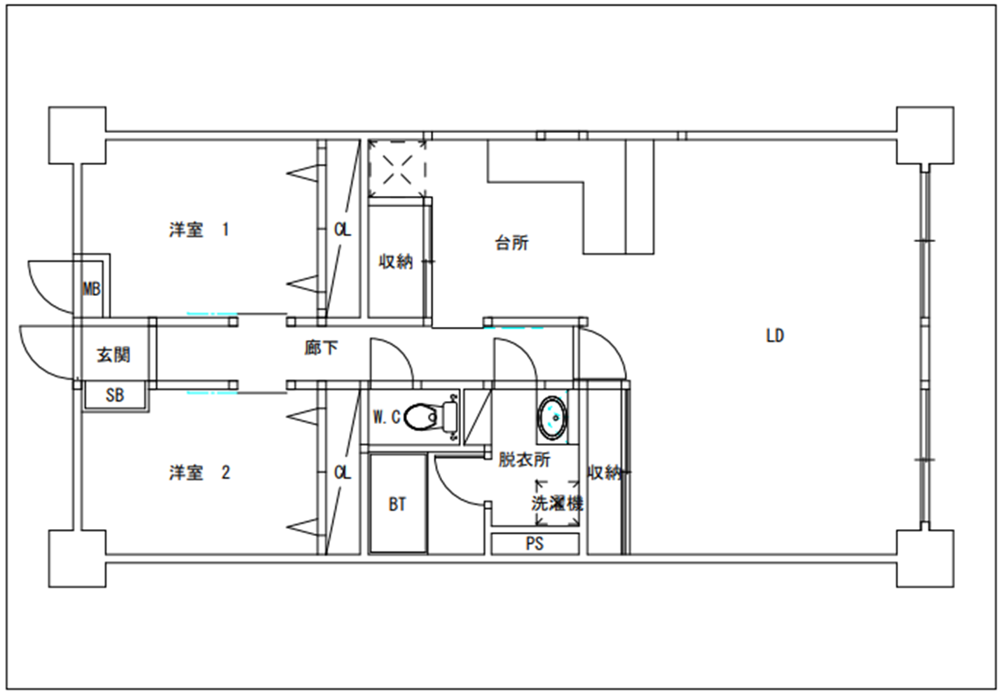
和室付の3LDKの部屋、リビングに収納スペースのない部屋
2LDKに変更しキッチンからの動線を考え、水廻りから近い場所へ移動。リビングからも行き来しやすくしました。
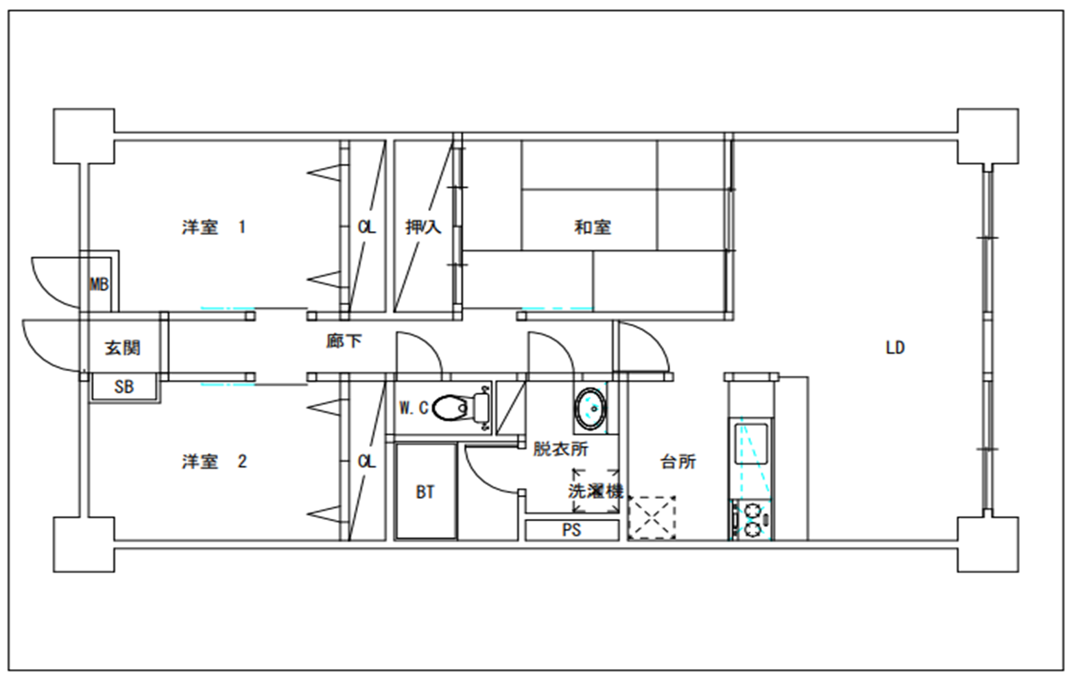
一般的な4LDK和室が一室とリビングが少し狭いのが特徴
寝室和室をリビングにリビングにリノベーション、和室の一部をマルチスペースとして利用できるようにしました。
メーカー保証1年に加えて、 さらに独自の保証プランで ※商品により、条件等が異なります。
アフターメンテナンスも工事職人が常駐しており、迅速に対応
| 株式会社ホームケア | |
| 【本社】 | 福岡市早良区早良5-23-19 |
| 【営業所】 | 東京都中央区日本橋兜町17-1-7F |
| 【支店】 | 福岡市城南区南片江2-25-52-1F |
| 【業種】 | 住宅・マンション・テナントリフォームリノベーション工事 |
| 建設業組合N会 |
||
| 【本社】 | 福岡市早良区早良5-23-19 |
|
| 【支部】 | 北九州市八幡東区諏訪2-11-38 |
|
| 【業種】 |
建設業組合 |
|
| 中尾建設 |
||
| 【本社】 | 福岡市城南区七隈7-4-16-1F | |
| 【業種】 |
外壁改修工事、仮設工事 | |

「センスと技術」が高い、両方兼ね備えた弊社へお任せ下さい。
各職の職人は 弊社は熟練の職人が多数在籍。
経験年数50年〜10年の職人常駐。